A117

Lakeside Retreat in Masuria - A Home in Harmony with Nature

Location: Jedwabno, Masuria, Poland 2023

--

Lakeside Retreat in Masuria - A Home in Harmony with Nature  

Location: Jedwabno, Masuria, Poland 2023

The Lakeside Homestead in Masuria is a single-family home project that perfectly fits into the picturesque landscape of the Masurian lakes. The simple shape of the building, connected to a garage with a carport, creates a functional and comfortable space for a family that values tranquility and closeness to nature.

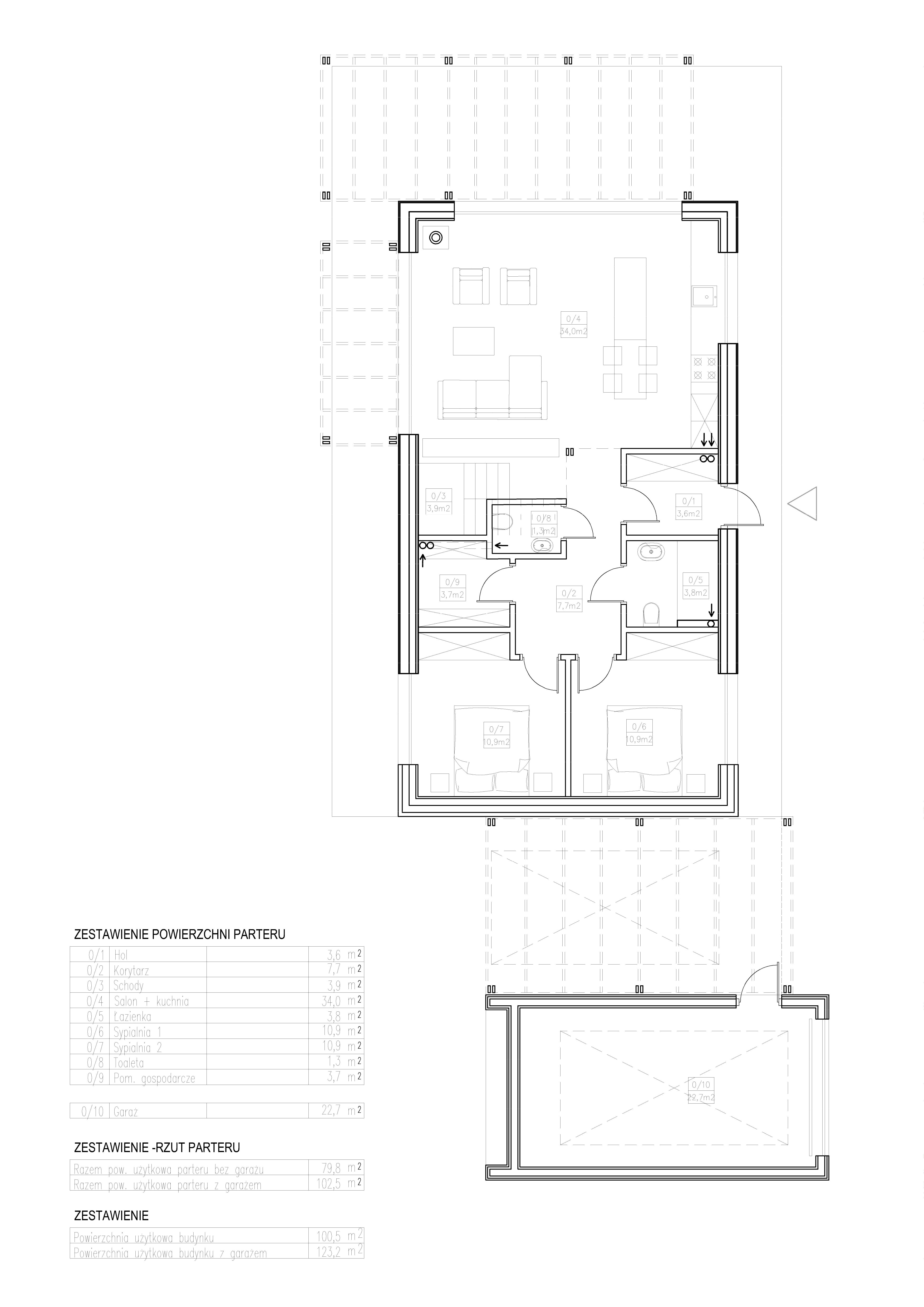
Usable space

The 100 m2 house is divided into two levels. The ground floor features an open living area with a kitchen, living room, and dining room, fostering togetherness. Two bedrooms, a bathroom, a toilet, and a utility room complete the functional layout of the ground floor. The attic contains a bedroom with a mezzanine, which can serve as a workspace or relaxation area.

Large windows and natural materials

Large windows provide excellent interior lighting and beautiful views of the surrounding greenery. The facade of the house combines the warmth of wood with the natural elegance of brick, creating a harmonious whole. Wood and brick are not only an aesthetically pleasing combination but also durable and easy to maintain.

Terrace - a relaxation zone

The spacious terrace is an ideal place for morning yoga, afternoon meditation, or evening relaxation with a view of the sunrise. It is a dream space for those seeking peace, quiet, and connection with nature.

--

The Lakeside Retreat in Masuria is a single-family home design that seamlessly blends into the picturesque landscape of the Masurian lakes. The simple form of the building, connected to a garage by a carport, creates a functional and comfortable space for a family that values peace and closeness to nature.

Functional layout

The 100 m2 house is divided into two levels. The ground floor features an open-plan living area with a kitchen, living room, and dining room, encouraging togetherness. Two bedrooms, a bathroom, a toilet, and a utility room complete the functional layout of the ground floor. The attic houses a bedroom with a mezzanine, which can serve as a workspace or a relaxation area.

Large windows and natural materials

Large windows provide excellent interior lighting and beautiful views of the surrounding greenery. The facade of the house combines the warmth of wood with the natural elegance of brick, creating a harmonious whole. Wood and brick are not only an aesthetically pleasing combination but also durable and easy-to-maintain materials.

Terrace - a relaxation zone

The spacious terrace is a perfect place for morning yoga, afternoon meditation, or evening relaxation with a view of the sunrise. It is a dream space for those seeking peace, quiet, and contact with nature.